Exfactor! Buiucani, str. Ion Buzdugan, 3 camere + living. Varianta Albă!
274 Vizualizări
119 900 €
1 378.16 € / m2
Specialist Imobiliar Chișinău, Centru
Nedoruban Alexandru
Telefon: +373 68722972

parter / 10

3 camere + living

Bloc nou

Fără reparație/ Variantă albă

Încălzire autonomă

87 m2

ExFactor

2 băi

Specialist Imobiliar Chișinău, Centru
Nedoruban Alexandru
Telefon: +373 68722972
Descriere

„Acasă este acolo unde te simți iubit, apreciat și în siguranță.”
Tracey Taylor

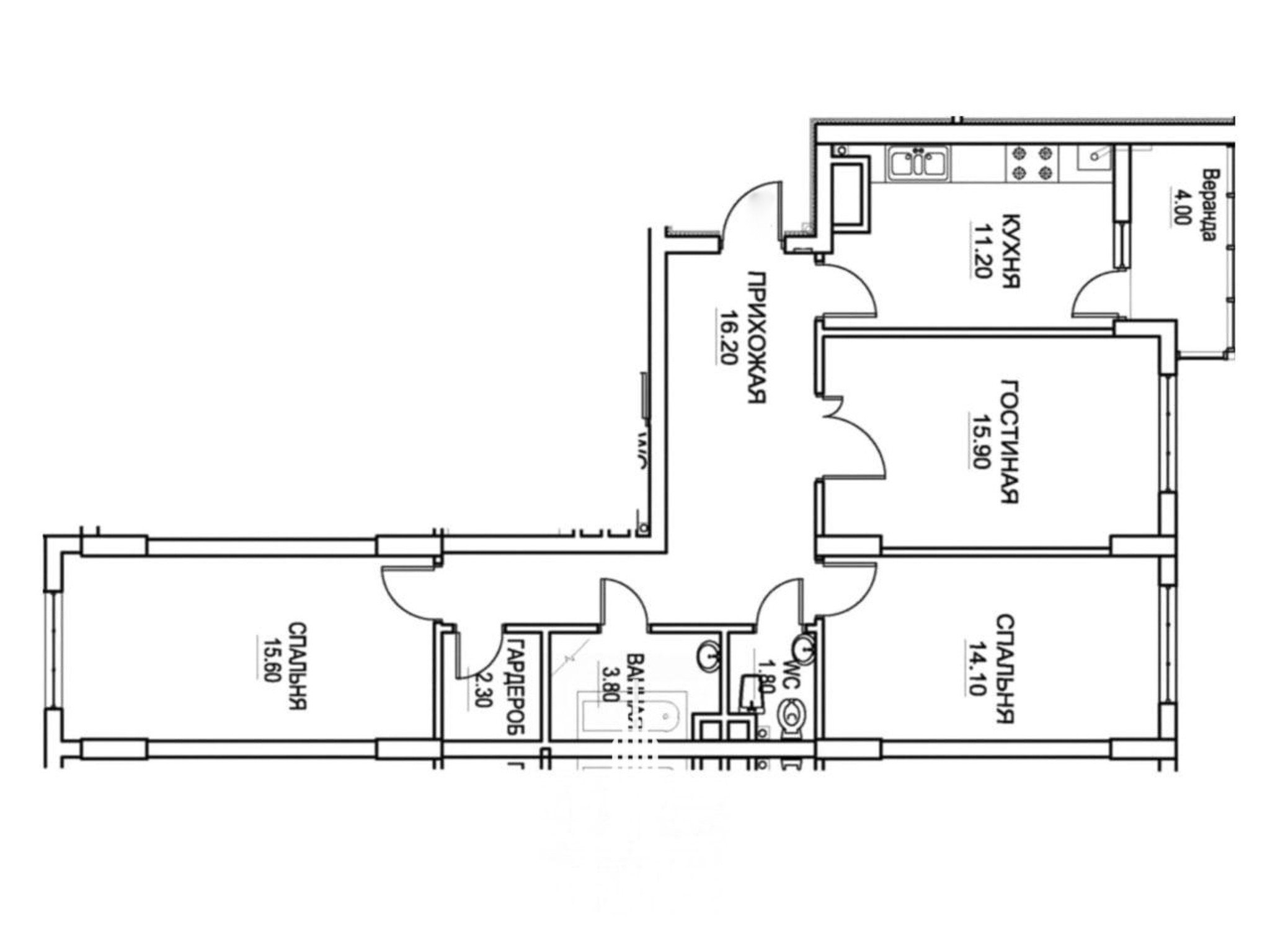
Oferim spre vânzare apartament cu 3 camere + living în complexul locativ construit de compania Exfactor, amplasat în sectorul Buiucani, str. Ion Buzdugan. Locuința se desfășoară pe o suprafață de 87 m2, localizat la etajul parter din 10, fiind compartimentat în: 3 camere, living, bucătărie, balcon, 2 blocuri sanitare și antreu.

  • varianta albă;
  • încălzire autonomă;
  • geamuri termopane;
  • izolare fonică și termică de calitate înaltă;
  • localizare de mijloc, bilaterală;
  • ușă blindată;
  • supraveghere video;
  • curte de tip închis;
  • teren de joacă;
  • parcare subterană;
  • zonă de relaxare pentru maturi;
  • locuri de parcare.

   În imediata apropiere se regăsesc diverse magazine alimentare și de uz casnic, sucursale bancare, farmacii, restaurante, grădiniță, școală.

   Reamintim! Aveți posibilitate să procurați apartamentul în credit cu doar 30% rată inițială!

   Dacă doriți să procurați sau să vindeți o proprietate imobiliară, atunci specialiștii imobiliari ai companiei LOYAL sunt onorați să vă reprezinte și să vă asigure o tranzacție profitabilă, lipsită de stres. Calificarea înaltă a specialiștilor cât și baza de date a proprietăților imobiliare de care dispunem, ne oferă posibilitatea de a presta servicii de calitate, tuturor clienților noștri.

Lasă o solicitare
Lasa o solicitare si vom gasi cea mai buna oferta.
Trimis cu success
Satisfacția clienților este prioritatea noastră principală din acest motiv un reprezentant al companiei LOYAL va reveni în cel mai apropiat timp.
Închide